Home »
Car Park »
LA »
Residence »
Colorado Original Roof Car Park Defining Contemporary Residence in LA
Colorado Original Roof Car Park Defining Contemporary Residence in LA
Colorado Original Roof Car Park Defining Contemporary Residence in LA - hello friend, welcome to our blog Bring Color to your Room this time we will discuss what you are looking for information that is on Colorado Original Roof Car Park Defining Contemporary Residence in LA We've collected a lot of data to make this article so that what we show complete enough for you, ranging from information design house that long until the latest, well please continue reading:
You can also see our article on:
Colorado Original Roof Car Park Defining Contemporary Residence in LA
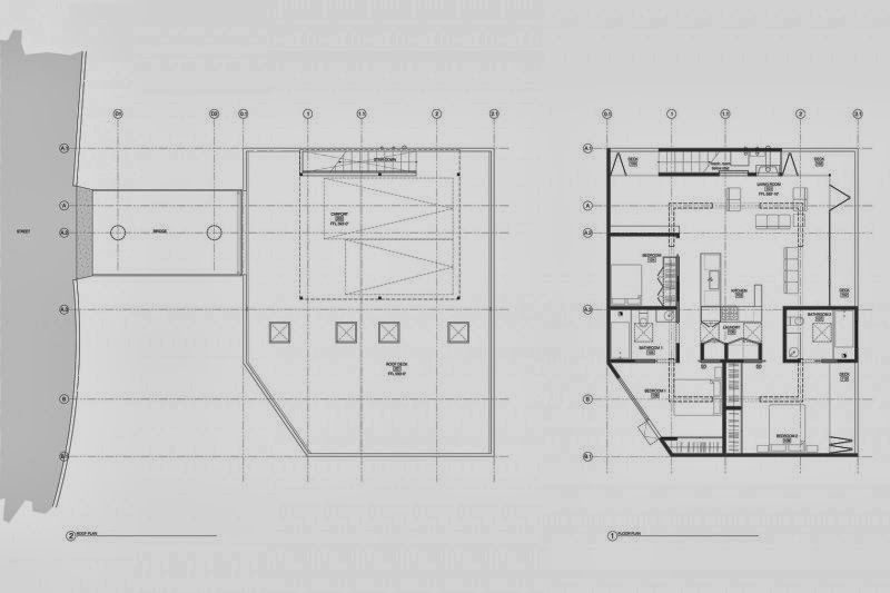
When approached with the challenge of designing a contemporary house with a parking lot for two cars, Anonymous Architects came up with a daring architecture concept. Car Park House in Los Angeles, California switches between the position of the open-air “garage” and the living spaces, located below: “In addition to being a dramatic shift of expectations, it is also a logical response to the building code which requires parking for two vehicles“, the architects explained. When it came to presenting this project, what caught our attention was the crazy idea of literally driving your car on the roof of your house.
The imposing silhouette of the Car Park House was cleverly integrated in its landscape:“Because of the steep terrain the house is designed to float over the hillside. This reduces the amount of foundation required and also means that the only way to access the house is over the bridge – so it is truly a floating structure”. The unusual abode also offers striking views of the San Gabriel Mountains, transforming each of its terraces into a genuine spot for contemplation. [Photos by: Steve King]
finished already articles that discuss Colorado Original Roof Car Park Defining Contemporary Residence in LA there can bookmark or share clicking the link https://thepmcblog.blogspot.com/2014/01/colorado-original-roof-car-park.html if it was helpful for you, hopefully in the article gives a broad insight about the design of the house.
Langganan:
Posting Komentar (Atom)














0 komentar:
Posting Komentar